- 近隣に商業施設が多数あり、生活便利です。国道4号に近いので、北にも南にも利便性の高い立地です。
- 長期にわたって良好な状態で使用できるよう、耐久性、省エネ性、維持管理のしやすさなどの基準を満たした【長期優良住宅】です。
- スーパー、コンビニ、ドラッグストアも近く、お買い物も便利!
- 近隣に複数の公園があり、季節の変化を感じながら子育てが出来る閑静な住宅地です。












- 価格
- 3,330万円
- 種別
- 新築戸建
- 間取
- 4LDK
-
- 所在地
- 福島県郡山市安積町長久保3丁目 安積町長久保3丁目新築住宅
- 交通
- JR東北本線 安積永盛駅 徒歩19分
物件詳細
| 築年月 | 2026/03 | 新築/中古 | |
|---|---|---|---|
| 面積 | 計測方式 | ||
| バルコニー | 6.62m² | 向き | 南西 |
| 建物階数 | 地上2階 | 部屋階数 | |
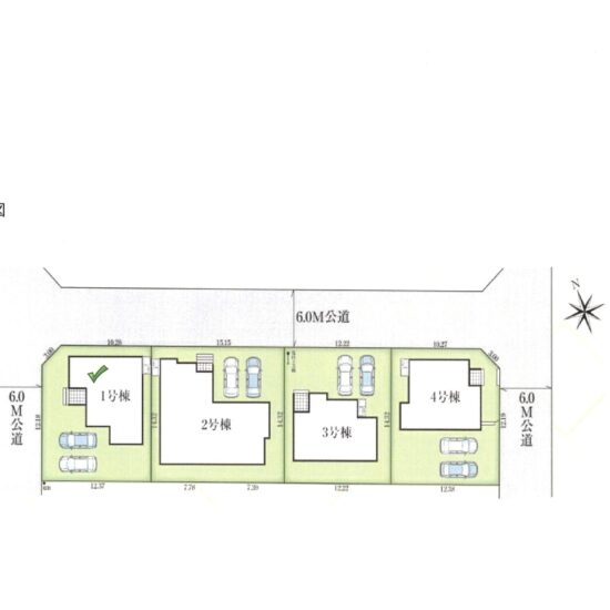
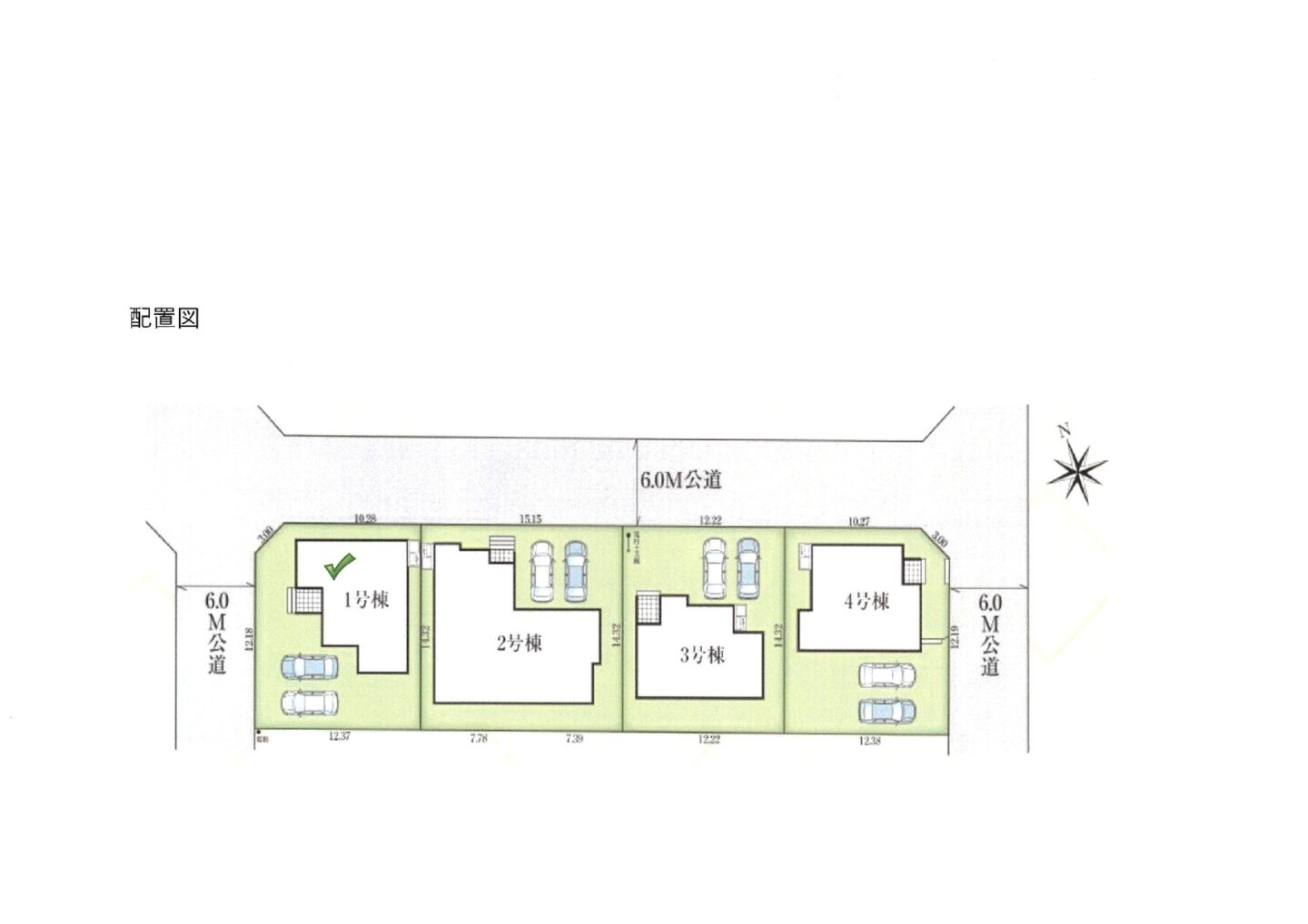
| 部屋/区画番号 | 1号棟 | 総戸/区画数 | 4 |
| 建物構造 | 木造 | ||
| 敷地全体面積 | 175.00m² | 延べ床面積 | 107.02m² |
| 間取内容 | 和室4.5畳 1階 1室 洋室5.25畳 2階 1室 洋室5.5畳 2階 1室 洋室7.75畳 2階 1室 LDK16.25畳 1階 1室 | ||
| 駐車場 | 取引態様 | 専任 | |
| 引渡/入居時期 | 相談 | 現況 | 未完成 |
| 地目 | 宅地 | 用途地域 | 第一種低層住居専用 |
| 都市計画 | 市街化区域 | 地勢 | 平坦 |
| 土地面積 | 175.0m² | 土地面積計測方式 | 実測 |
| 建ぺい率 | 50% | 容積率 | 100% |
| 土地権利 | 所有権 | 接道状況 | 角地 |
| 接道方向1 | 北 | 接道間口1 | |
| 接道種別1 | 公道 | 接道幅員1 | 6.0m |
| 接道方向2 | 西 | 接道間口2 | |
| 接道種別2 | 公道 | 接道幅員2 | 6.0m |
| 国土法届出 | 不要 | ||
| 周辺環境 |
郡山市立安積第三小学校 郡山市立安積第二中学校 スーパーかわちや安積店まで234m、ヨークベニマル安積町店まで865m、セブンイレブン郡山安積町長久保店まで530m、ファミリーマート郡山安積三丁目店まで609m、すき家4号郡山安積店まで595m、ツルハドラッグ郡山安積店まで498m、梅の木保育園まで255m、 (財)慈山会医学研究所付属坪井病院まで1,115m |
||
| 設備・条件 | 角地 IHコンロ 三口コンロ システムキッチン カウンターキッチン 給湯 追い焚き 洗髪洗面化粧台 独立洗面台 バス専用 シャワー トイレ専用 バス・トイレ別 床下収納 W.INクローゼット 室内洗濯機置き場 TVドアホン プロパンガス 公営水道 排水下水 駐車場有 駐輪場 バイク置き場 専用庭 バルコニー フローリング オール電化 | ||
| 物件番号 | 1 | ||
Loading...
※物件掲載内容と現況に相違がある場合は現況を優先と致します。
お問い合わせはこちらからお寄せください
お電話からのご予約・お問い合わせ
TEL024-983-5422
営業時間/10:00~18:00
定休日/日曜日・祝日・第1,3土曜日
免許番号/福島県知事(1)第3593号
WEBからのご予約・お問い合わせは、下記のフォームからお気軽にどうぞ
















