- 近隣に商業施設が多数あり、生活便利です。国道4号に近いので、北にも南にも利便性の高い立地です。
- 長期にわたって良好な状態で使用できるよう、耐久性、省エネ性、維持管理のしやすさなどの基準を満たした【長期優良住宅】なので、住宅ローン控除等の税制優遇や地震保険などの割引を受けることができます!











- 価格
- 3,580万円
- 種別
- 新築戸建
- 間取
- 3LDK
-
- 所在地
- 福島県郡山市安積町長久保3丁目 安積町長久保3丁目新築住宅
- 交通
- JR東北本線 安積永盛駅 徒歩19分
物件詳細
| 築年月 | 2026/03 | 新築/中古 | |
|---|---|---|---|
| 面積 | 計測方式 | ||
| バルコニー | 向き | 南西 | |
| 建物階数 | 地上1階 | 部屋階数 | |
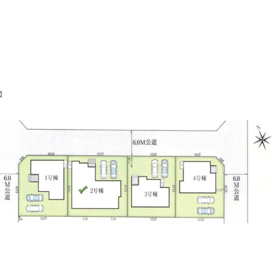
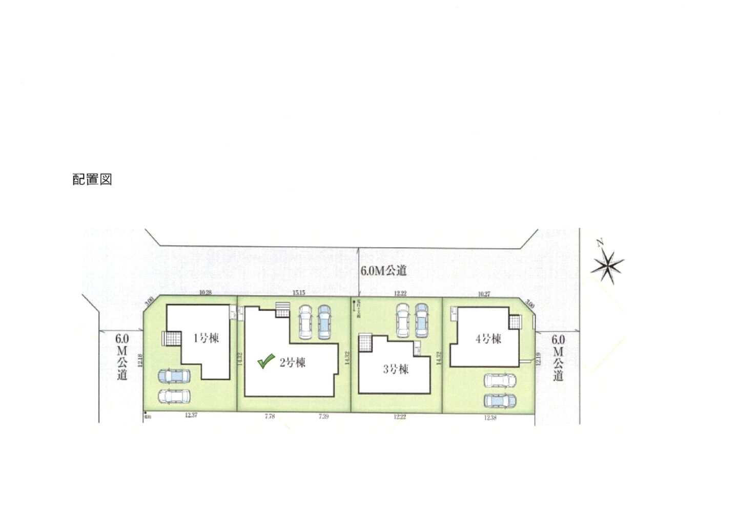
| 部屋/区画番号 | 2号棟 | 総戸/区画数 | 4 |
| 建物構造 | 木造 | ||
| 敷地全体面積 | 217.08m² | 延べ床面積 | 100.40m² |
| 間取内容 | 洋室5.25畳 1階 1室 洋室5.25畳 1階 1室 洋室7.0畳 1階 1室 LDK20.0畳 1階 1室 | ||
| 駐車場 | 取引態様 | 専任 | |
| 引渡/入居時期 | 相談 | 現況 | 未完成 |
| 地目 | 宅地 | 用途地域 | 第一種低層住居専用 |
| 都市計画 | 市街化区域 | 地勢 | 平坦 |
| 土地面積 | 217.08m² | 土地面積計測方式 | 実測 |
| 建ぺい率 | 50% | 容積率 | 100% |
| 土地権利 | 所有権 | 接道状況 | 一方 |
| 接道方向1 | 北 | 接道間口1 | |
| 接道種別1 | 公道 | 接道幅員1 | 6.0m |
| 国土法届出 | 不要 | ||
| 周辺環境 |
郡山市立安積第三小学校 郡山市立安積第二中学校 スーパーかわちや安積店まで234m、ヨークベニマル安積町店まで865m、セブンイレブン郡山安積町長久保店まで530m、ファミリーマート郡山安積三丁目店まで609m、すき家4号郡山安積店まで595m、ツルハドラッグ郡山安積店まで498m、梅の木保育園まで255m、 (財)慈山会医学研究所付属坪井病院まで1,115m |
||
| 設備・条件 | IHコンロ 三口コンロ システムキッチン カウンターキッチン 給湯 追い焚き 洗髪洗面化粧台 独立洗面台 バス専用 シャワー 浴室乾燥機 ユニットバス トイレ専用 バス・トイレ別 床下収納 W.INクローゼット 室内洗濯機置き場 TVドアホン プロパンガス 公営水道 排水下水 駐車場有 駐輪場 バイク置き場 専用庭 バルコニー フローリング オール電化 建築確認番号:第HPA-25-12686-1号 |
||
| 物件番号 | 2 | ||
Loading...
※物件掲載内容と現況に相違がある場合は現況を優先と致します。
お問い合わせはこちらからお寄せください
お電話からのご予約・お問い合わせ
TEL024-983-5422
営業時間/10:00~18:00
定休日/日曜日・祝日・第1,3土曜日
免許番号/福島県知事(1)第3593号
WEBからのご予約・お問い合わせは、下記のフォームからお気軽にどうぞ















